推薦產品
河南華東起重機械設備公司
服務熱線:400 086 9590
公司:河南華東起重機械設備有限公司
聯系人:賈經理
聯系電話:13903802779
地址:河南新鄉市封丘縣起重機工業園區
當前位置: 起重機 > 技術資料 > 起重機百科
10噸單梁起重機技術參數表10噸單梁行車外形尺寸
時間:2021-10-01來源:單梁起重機廠家瀏覽次數:5232
10噸單梁起重機圖片展示:

10噸單梁起重機技術參數表:
|
起重量
|
t |
10噸單梁行車
|
|||||||||||||||||||||||||
|
操縱形式
|
地面操縱
|
操作室操縱
|
|||||||||||||||||||||||||
|
運行機構
|
運動
速度 |
m/min |
20m/min
|
30m/min
|
45m/min
|
60m/min | |||||||||||||||||||||
|
減速比
|
58.95
|
39.42
|
25.19
|
20.08 | |||||||||||||||||||||||
|
電機型號
|
ZDY21-4
|
ZDR12-4 | |||||||||||||||||||||||||
|
功率
|
KW
|
2*0.8KW
|
2*1.5KW | ||||||||||||||||||||||||
|
轉速
|
r/min
|
1380r/min
|
1380r/min | ||||||||||||||||||||||||
|
起升機構
|
電動葫蘆型號
|
CD1型電動葫蘆 MD1型電動葫蘆
|
|||||||||||||||||||||||||
|
起升速度
|
m/min |
7m/min
|
|||||||||||||||||||||||||
|
運行長度
|
m |
9米、12米、18米、24米、30米
|
|||||||||||||||||||||||||
|
運行速度
|
m/min |
20m/min,30m/min
|
|||||||||||||||||||||||||
|
|
電機型號
|
錐形鼠籠形電動機
|
|||||||||||||||||||||||||
|
工作制度
|
A3-A5
|
||||||||||||||||||||||||||
|
起重機電源
|
三相 380V 50HZ
|
||||||||||||||||||||||||||
|
車輪直徑
|
mm |
400mm
|
|||||||||||||||||||||||||
|
常用軌道
|
kg/m |
24kg/m,38kg/m
|
|||||||||||||||||||||||||
|
跨度S
|
m |
7.5米-11米
|
11.5米-12米
|
12.5米-14米
|
14.5米-17米
|
19.5米
|
22.5米 | ||||||||||||||||||||
|
總重
|
地操 | t |
3.35-3.97噸
|
4.23-4.31噸
|
4.43-4.73噸
|
5.08-5.60噸
|
6.65噸
|
7.78噸 | |||||||||||||||||||
| 室操 |
3.35-3.97噸
|
4.23-4.31噸
|
4.43-4.73噸
|
5.08-5.60噸
|
6.65噸
|
7.78噸 | |||||||||||||||||||||
|
輪壓
|
地操 | t |
5.15-5.83噸
|
5.67-5.71噸
|
5.77-5.89噸
|
5.95-6.14噸
|
6.43噸
|
6.71噸 | |||||||||||||||||||
| 室操 |
5.51-5.96噸
|
6.04-6.09噸
|
6.14-6.27噸
|
6.34-6.52噸
|
6.82噸
|
6.71噸 | |||||||||||||||||||||
|
基本尺寸
|
H1 | mm |
900mm
|
1000mm
|
1100mm
|
1150mm
|
1200mm | ||||||||||||||||||||
| H2 |
2500mm
|
3000mm
|
3500mm
|
||||||||||||||||||||||||
| K |
2000mm
|
2500mm
|
3000mm
|
||||||||||||||||||||||||
| L1 | 850mm | ||||||||||||||||||||||||||
| L2 | 1310mm | ||||||||||||||||||||||||||
| h | 1470mm |
1490mm
|
1540mm |
1600mm
|
1640mm | ||||||||||||||||||||||
| H1 | 745mm |
885mm
|
895mm |
885mm
|
935mm | ||||||||||||||||||||||
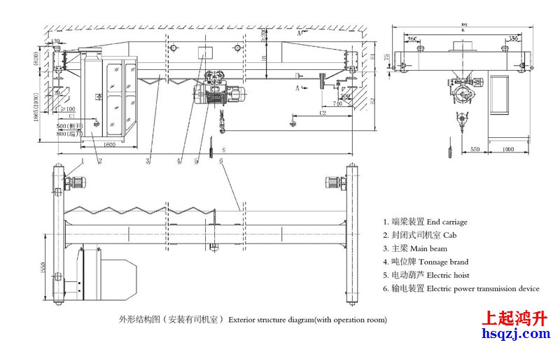
10噸單梁行車外形尺寸圖:

拖拽可查看大圖
10噸單梁起重機是電動單梁起重機中比較常用噸位行車,以上就是為大家介紹的10噸單梁起重機主要技術參數表、10噸單梁行車外形尺寸圖及10噸單梁起重機外形結構圖。
-
14
2025-08
架橋機的安全技術要點介紹
架橋機的安全技術要點介紹:1、架橋機安裝拆除屬于超過規模、危險性較大的工程,需編制專項施工方案,并論證。2、拼裝工藝流程為:施工準備→安放前支腿、中支腿橫移軌道→安前支腿、中支腿、后支腿→拼裝主梁、導梁、安裝聯系框架→安裝導梁前支腿→安裝起吊天車→液壓、電控系統安裝調試。3、架橋機安裝前應對進場的構件、配件、工機具等進行詳細檢查驗收。4、場地尺寸及地基承載力應滿足架橋機安裝及試運荷載的要求;場地平...詳細
-
12
2025-08
架橋機的檢測方案、橋機運行參數控制
架橋機的檢測方案 1、對結構主梁的檢測 架橋機結構主梁對減輕其自重,減少風阻力有著重要的意義,一般由三個或者五個等長度焊制成的桁架組裝連接。相關工作人員可以根據塔式起重機起重臂的檢測方法,對主梁各段連結銷軸逐個檢查,確認是否達到緊密連結; 2、對起升機構和運行機構的檢測 架橋機在形式結構和起升方式上都與雙梁門起重機相似,但是兩者的不同就是有兩臺du立的提升小車機構。在對每個機構的提升制動和...詳細
-
03
2025-08
單梁式架橋機額定起重量與工作級別解析
單梁式架橋機額定起重量與工作級別解析單梁式架橋機的額定起重量與工作級別是衡量其承載能力和適用性的核心指標,直接影響橋梁架設的安全性和效率。額定起重量指架橋機在標準工況下可穩定吊裝的z大重量,而工作級別則反映其載荷頻率和使用強度,兩者需根據工程需求和結構特性綜合設計。目前主流單梁式架橋機的額定起重量覆蓋范圍廣,從 130 噸到 1000 噸不等。箱梁式結構因閉合截面抗扭剛度高,通常適配較大起重量,例...詳細
-
03
2025-08
單梁式架橋機主梁跨度與長度設計要點解析
單梁式架橋機主梁跨度與長度設計要點解析單梁式架橋機的主梁跨度與長度是決定其施工能力的核心參數,直接影響橋梁架設的效率和安全性。主梁跨度指架橋機能夠覆蓋的兩橋墩間z大距離,而長度則涉及主梁整體結構尺寸,兩者需根據工程需求和力學性能綜合設計。箱梁式主梁的跨度通常在 20-60 米之間,典型案例如 JQ1000 架橋機可架設 40 米高鐵箱梁,其主梁采用高強度鋼材設計,總長度達 116 米,通過低位過隧...詳細
-
01
2025-08
單梁懸掛起重機軌道安裝問題有哪些?
單梁懸掛起重機軌道安裝問題有哪些?單梁懸掛起重機的軌道安裝和橋式起重機、門式起重機的都不同,它不鋪設在地上,也不坐落在工字鋼上,它是倒掛在立柱或者型梁上,軌道常見的安裝問題有哪些呢?一起來看看吧軌道直線度或平行度超差原因:軌道安裝時未校準,導致直線度或平行度偏差過大。解決辦法:使用經緯儀或全站儀檢測軌道直線度,允許偏差≤1/1500且全長≤10mm;平行度偏差≤10mm。若偏差超標,需重新調整軌道...詳細
-
01
2025-08
架橋機過孔穩定性調控技術與實踐
架橋機過孔穩定性調控是節段拼裝橋梁施工的核心環節,其核心目標是通過多維度協同控制確保架橋機在移位過程中保持結構穩定,避免傾覆、滑移或局部失穩。該技術需綜合機械設計、液壓控制、智能監測等多學科知識,結合工程實際制定差異化實施方案。以下從系統構成、控制策略、關鍵技術及工程實踐展開分析。一、系統構成與力學原理架橋機過孔穩定性調控系統主要由支撐體系、行走機構、配重平衡裝置及監測系統組成。支撐體系通常包括前...詳細




















