推薦產品
河南華東起重機械設備公司
服務熱線:400 086 9590
公司:河南華東起重機械設備有限公司
聯系人:賈經理
聯系電話:13903802779
地址:河南新鄉市封丘縣起重機工業園區
當前位置: 起重機 > 成功案例 > 起重機業績
32/5噸LH型電動葫蘆雙梁橋式起重機
時間:2018-09-12來源:橋式起重機廠家瀏覽次數:1360
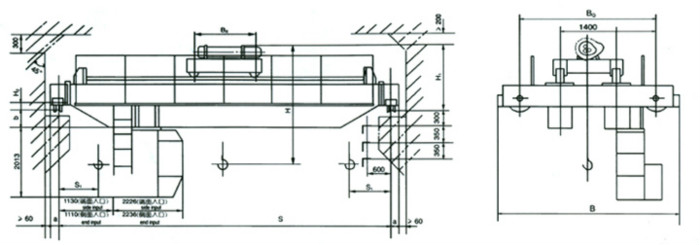
LH型32/5T-13.5M電動葫蘆雙梁橋式起重機,32/5噸-13.5米LH型電動葫蘆雙梁橋式起重機,起重量:主鉤32噸、副鉤5噸;跨度:13.5米;有效起升高度:12米;電動葫蘆雙梁橋式起重機使用固定式電動葫蘆作小車的起升機構。
LH型電動葫蘆雙梁橋式起重機產品介紹:
電動葫蘆雙梁橋式起重機具有外形尺寸緊湊、建筑凈空高度低、輪壓小自重輕、同類雙梁橋式起重機中電動葫蘆雙梁橋式起重機價格便宜更多等優點,我公司生產最大額定起重量在64噸及以下的電動葫蘆雙梁橋式起重機。
LH型電動葫蘆雙梁橋式起重機技術參數:
電動葫蘆雙梁起重機大車運行速度:20M/MIN、30M/MIN(可定做);小車運行速度:20M/MIN;起升速度5噸及以下8M/MIN、10噸起升速度7M/MIN、16噸起升速度3.5M/MIN、32噸起升速度2.5M/MIN,以上參數都可以非標設計,特殊定制訂做。
LH型電動葫蘆雙梁橋式起重機適用范圍:
該起重機產品主要適用于機械加工車間、倉庫車間、料場、電站等的轉運、裝配、檢修和裝卸作業。它也可以代替普通雙梁橋式起重機,用于輕紡工業和食品工業的生產車間。
LH型電動葫蘆雙梁橋式起重機工作級別:
該設備工作級別為輕級和中級,工作級別:A3/M3、JC=15%、JC=25%,適合在使用頻率較低場合使用,使用頻繁不建議使用。
LH型電動葫蘆雙梁橋式起重機工作環境:
該設備工作環境溫度為-20-40℃,禁止在易燃、易爆、腐蝕性介質等特殊環境中使用,特殊環境使用可加防爆或礦用防爆。
歐式起重機產品推薦:單梁歐式起重機 歐式單梁起重機

加微信好友

微信小程序

微信公眾號
400-086-9590
139-0380-2779
- 售后服務
-




















